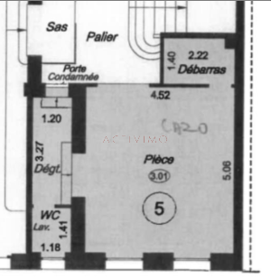
Appartement 56.55 m²
Neuilly-Sur-Seine
Voir le bien


